施設案内Facility information
プライバシーはしっかり守りながらも、
光を取り入れた開放感ある空間です。
光を取り入れた開放感ある空間です。
居室
1号館
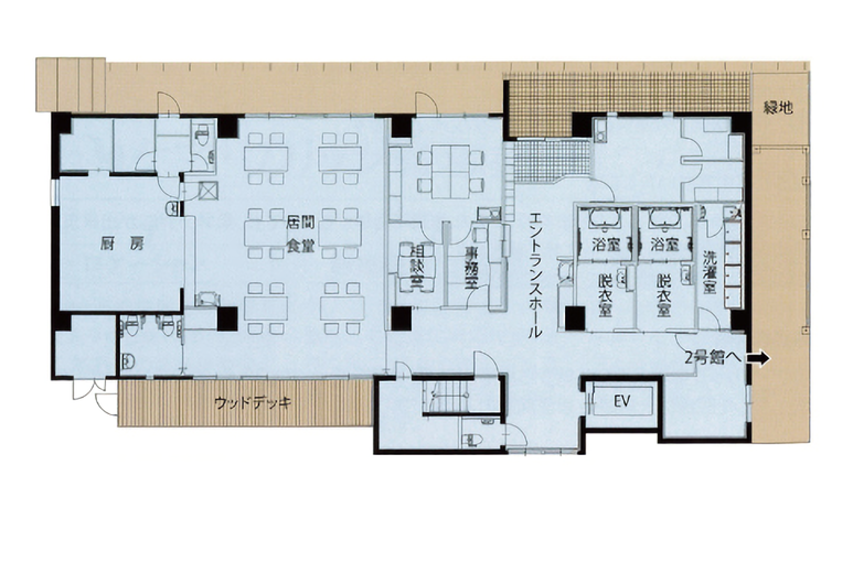
2号館
安心設備万が一に備え、充実の設備で見守ります。
- 緊急コール
- 万が、一体調が悪くなった場合などにボタンを押せば、常駐するスタッフに通報できます。寝室/トイレ/浴室に設置しています。
- 生活リズムセンサー
- 一定時間以上、人の動きがない場合に作動する生活リズムセンサーを天井に設置。作動すると、安否確認にスタッフが伺います。
- 火災感知器
- 居室内と共用施設の天井には、火災感知器を設置しています。万が一、火災が発生したときは、ご入居者とスタッフに警報で知らせます。
- スプリンクラー
- 居室内と共用施設の天井には、スプリンクラーを設置しています。万が一、火災が発生したときには、自動的に散水し、初期消火を行います。
- 非常用放送
- 火災や地震などが起こった場合には、居室内と共用施設に設置したスピーカーより、一斉放送で通報。避難・誘導の指示を速やかに行います。 ※館内イベントの告知等に使用することもあります。
ユニバーサル設備誰もが使いやすい設備で、居室での時間をより快適に。
- バリアフリー
- 玄関から居室まで、段差のないバリアフリー設計です。老化や浴室なども十分な広さを確保して、車イスでも快適に生活できます。
- 手すり設置
- 玄関から廊下、トイレや浴室など十分に手すりを設置していますので、動作のサポートに役立ちます。
- 引戸
- 居室内の扉は、引戸を採用しました(一部のトイレを除く)。車イスに座ったままでも、開閉と移動がスムーズにできます。
ギャラリー
食事
イベントなど











